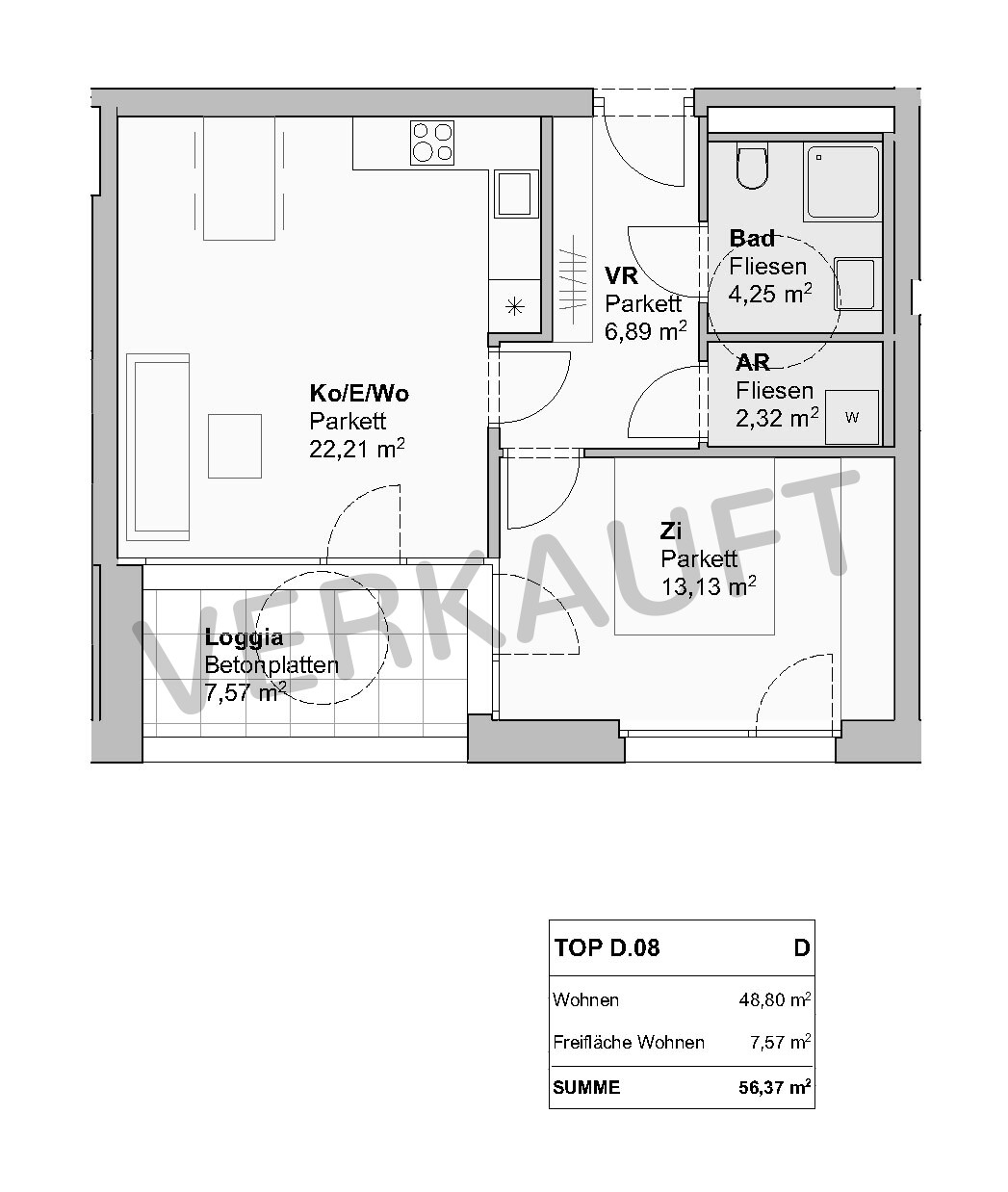
Haus D: 2. OG TOP 08
| Zimmer | 2 |
|---|---|
| Bad | 1 |
| WC | 1 |
| Kellerabteil | 1 |
| Nutzfläche gesamt | 56,37 m² |
| - Wohnfläche | 48,80 m² |
| - Loggia | 7,57 m² |
| Kaufpreis | € 235.000 |
| Laufende mtl. Kosten | € 169,11 |
| HWB | 24,00 kWh/m²a |
| fGEE | 0,73 |
| Nebenkosten | 6,10% inkl. USt. |
(Grunderwerbssteuer, Eintragungsgebühr, Vertragserrichtungsgebühr)
