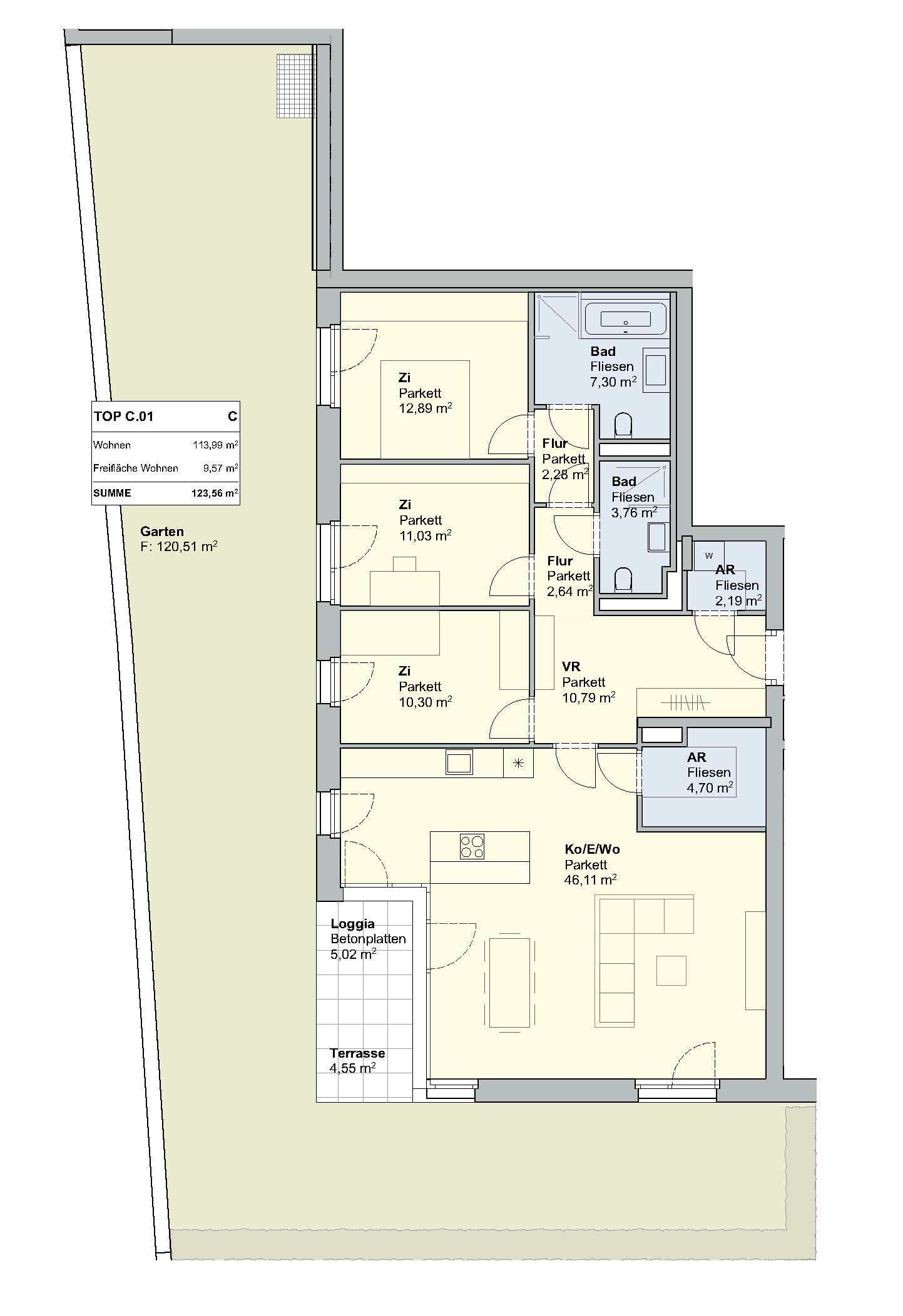
Haus C: EG TOP 01
| Zimmer | 4 |
|---|---|
| Bad | 2 |
| WC | 2 |
| Kellerabteil | 1 |
| Nutzfläche gesamt | 119,01 m² |
| - Wohnfläche | 113,99 m² |
| - Loggia | 5,02 m² |
| Terrasse | 4.55 |
| Garten | 120.51 |
| Kaufpreis | € 514.000 |
| Laufende mtl. Kosten | € 357,03 |
| HWB | 28,00 kWh/m²a |
| fGEE | 0,77 |
| Nebenkosten | 6,10% inkl. USt. |
(Grunderwerbssteuer, Eintragungsgebühr, Vertragserrichtungsgebühr)
